TWO-STOREY HOUSE WITH A SEA VIEW – ŽDRELAC, ISLAND OF PAŠMAN
Description
In a peaceful location in Ždrelac, on the island of Pašman, just 140 meters from the sea and well-maintained beaches, lies a charming family house featuring two completely separate residential units, a garage, and an additional attic space.
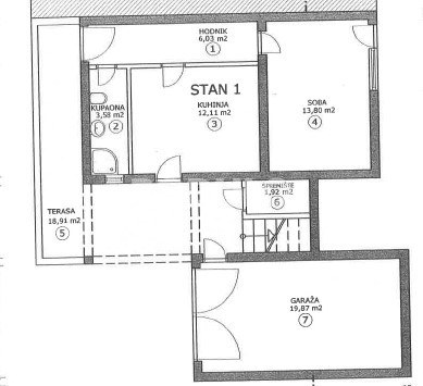
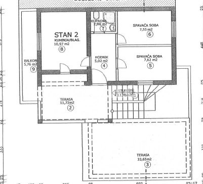
The house sits on a plot of 172 m² and consists of a ground floor and an upper floor, each with a separate entrance. On the ground floor, there is a one-bedroom apartment of approximately 40 m², comprising a bedroom, bathroom, a small kitchen, and a living room with access to the terrace and courtyard. The upper floor features a two-bedroom apartment of around 40 m², with a spacious partially covered terrace of about 45 m², offering a lovely view of the sea and the surrounding landscape. From this terrace, an external staircase leads to an additional rooftop terrace of 12 m², which offers an exceptional panoramic view of the sea, the Pašman Bridge connecting the islands of Pašman and Ugljan, and the village of Ždrelac itself.
All terraces are oriented to the northeast, making them ideal for relaxing and socializing during the hot summer days, as they provide natural shade and a pleasant atmosphere. Thanks to their spaciousness, everyone can find a private corner for rest and complete relaxation.
The interior of the house is designed in a simple and functional manner, focusing on comfort and outdoor living. Surrounded by Mediterranean greenery and a quiet neighborhood, the property exudes an authentic island charm — perfect for those seeking peace, proximity to the sea, and a high quality of life in one of the most pleasant areas of Pašman Island.
The house also includes a garage of 19.8 m² and a private parking space, while the unfinished attic offers the possibility of conversion — ideal for storage, a workshop, or even a small living space (gallery).
Ždrelac is a picturesque village located at the junction of the islands of Pašman and Ugljan, known for its crystal-clear sea, peaceful bays, and authentic Mediterranean atmosphere. Owing to its proximity to the mainland — connected by a bridge to Ugljan Island and by ferry lines Preko–Zadar and Tkon–Biograd — Ždrelac represents an excellent choice for a family home, holiday retreat, or investment property.
More info
- Facility code: 1376
- Type: House
- Location: Ždrelac, otok Pašman
- Neighbourhood: Gladuša, Ždrelac
- Surface area: 80.00 m2
- Surface area of land: 172.00 m2
- New building: -
- Year of built: 2000.
- Number of floors: 2
- Floor: 1
- Number of bedrooms: 0
- Terrace / loggia: +
- Distance from the sea: 140
- Sea view: +
- Parking: +
- Garage: +
- Ownership: 1/1
- Heating: air conditioning
- Public utilities: city waterworks
- Permissions: title deed, building permit, building permit
- Energy certificate: -
- Total price: 248.000,00 €

