EXCLUSIVE VILLA WITH POOL (PROJECT + CONSTRUCTION) – ISLAND OF PREMUDA
Description
The project of a luxury modern villa, with a total gross construction area of 367 m², has been designed to fully combine contemporary architectural expression with the natural ambience of the island of Premuda. The villa is situated on a plot of land measuring 925 m², and its architecture is characterised by clean lines and large glass surfaces which allow an abundance of natural light and a continuous connection between the interior and the outdoor space.
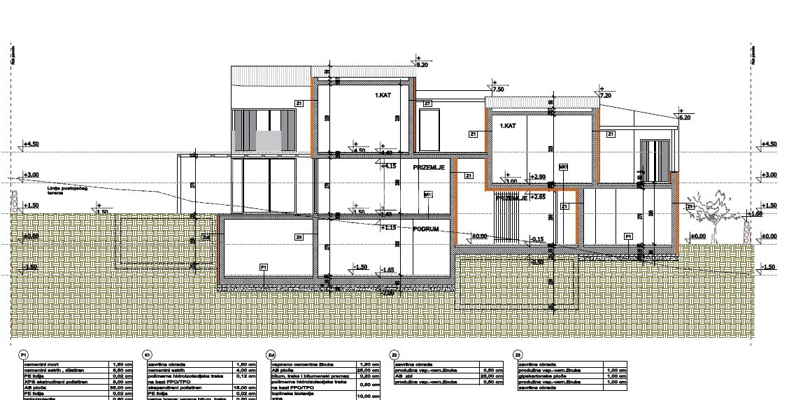
The concept of the villa is arranged over three levels and consists of a basement, ground floor and first floor, with an emphasis on functionality, spaciousness and a high level of privacy, with a carefully organised room layout. The ground floor, with a gross area of 152 m², is divided into two separate residential units, although they may also be used as one whole.
The first residential unit, with a gross area of 88 m² on the ground floor, is conceived as an elegant open-plan concept combining a spacious living room, kitchen and dining area, together with a guest WC and storage room. By an internal staircase it is connected to the first floor, where there are four bedrooms, each with its own bathroom and access to a covered or open terrace, ideal for relaxation and enjoying the sunset. On the same floor there are also two additional storage rooms (wardrobe and laundry room). The gross area of the first floor is 170 m².
The second residential unit on the ground floor has an area of 63 m² and consists of a kitchen, living room, two bedrooms and a bathroom. Such a layout provides additional independence and represents an excellent solution for the comfortable accommodation of guests and friends.
There is also a basement with a usable area of 86 m², or a gross area of 43 m², intended for technical and additional facilities which further enhance the comfort of living.
The outdoor area has been designed as a zone of complete relaxation with a swimming pool of 47 m² (used as an indoor pool during the winter months), a sunbathing area and an elegant pergola creating pleasant shade and a space for social gatherings. Its elevated position ensures peace, privacy and attractive views towards nature and the sea. The beach is approximately 500 metres away.
The future property is ideal as a private luxury villa, but also as a business investment with strong return potential. Owing to its organisation and functionality, it also offers the possibility of being used as a hospitality venue suitable for organised lunches, various events, smaller international weddings, all with accommodation provided for guests.
Note: At this stage, the future owner is offered the possibility of purchasing the land with the project only, or acquiring a fully built and completed villa, with the option of adapting and aligning the project according to personal wishes and requirements.
Link to the land offer: https://www.bodulo-realestate.hr/hr/248-za-prodaju-gradjevinski-teren-premuda--otok-premuda-925-00m2-zadarski-otoci/
More info
- Facility code: 10015
- Type: Villa
- Location: Premuda, otok Premuda
- Neighbourhood:
- Surface area: 367.00 m2
- Surface area of land: 925.00 m2
- New building: -
- Year of built:
- Number of floors: 3
- Floor: 1
- Number of bedrooms: 2
- Terrace / loggia: +
- Distance from the sea: 500
- Sea view: +
- Parking: +
- Garage: -
- Ownership: 1/1
- Heating:
- Public utilities:
- Permissions: title deed, building permit
- Energy certificate: -
- Total price: upon request

